Australia

$2,200,000

144 Baulds Road, Table Cape, Tas 7325

# Location

Description

Hobby Farm with 2 Dwellings Nestled in a breathtakingly picturesque location at Table Cape, this pristine property offers an extraordinary living experience with stunning 360- degree views that capture the essence of its spectacular surroundings, the option of dual living in the home. Perched high above the coastline, A1 soil, the home boasts uninterrupted vistas of the shimmering sea, lush landscapes, and distant horizons, making every sunrise and sunset a mesmerizing experience, North facing. The main residence has been beautifully renovated, blending modern luxury with timeless charm. Every details has been carefully curated to ensure both comfort and style, from the spacious open-plan living area flooded with natural light and sea views to the high-end finishes and fixtures that define the home's sophisticated aesthetic. A true highlight of this property is the exceptional separate cottage set up for Airbnb, designed with the same level of care and attention. Guests are treated with their own slice of paradise, with serene views that stretch as far as the eye can see. Surrounded by natural beauty and equipped with every modern convenience, this property is more than just a home- its a sanctuary. This property is located in one of the most beautiful areas imaginable, this is a rare opportunity to own a piece of paradise, 7 minutes from the airport and shops.

Disclaimer: VIEW Real Estate Wynyard has obtained all information in this document from sources we believe to be reliable however, we cannot guarantee its accuracy. Prospective buyers are advised to carry out their own investigations. All measurements are approximate.

View More #

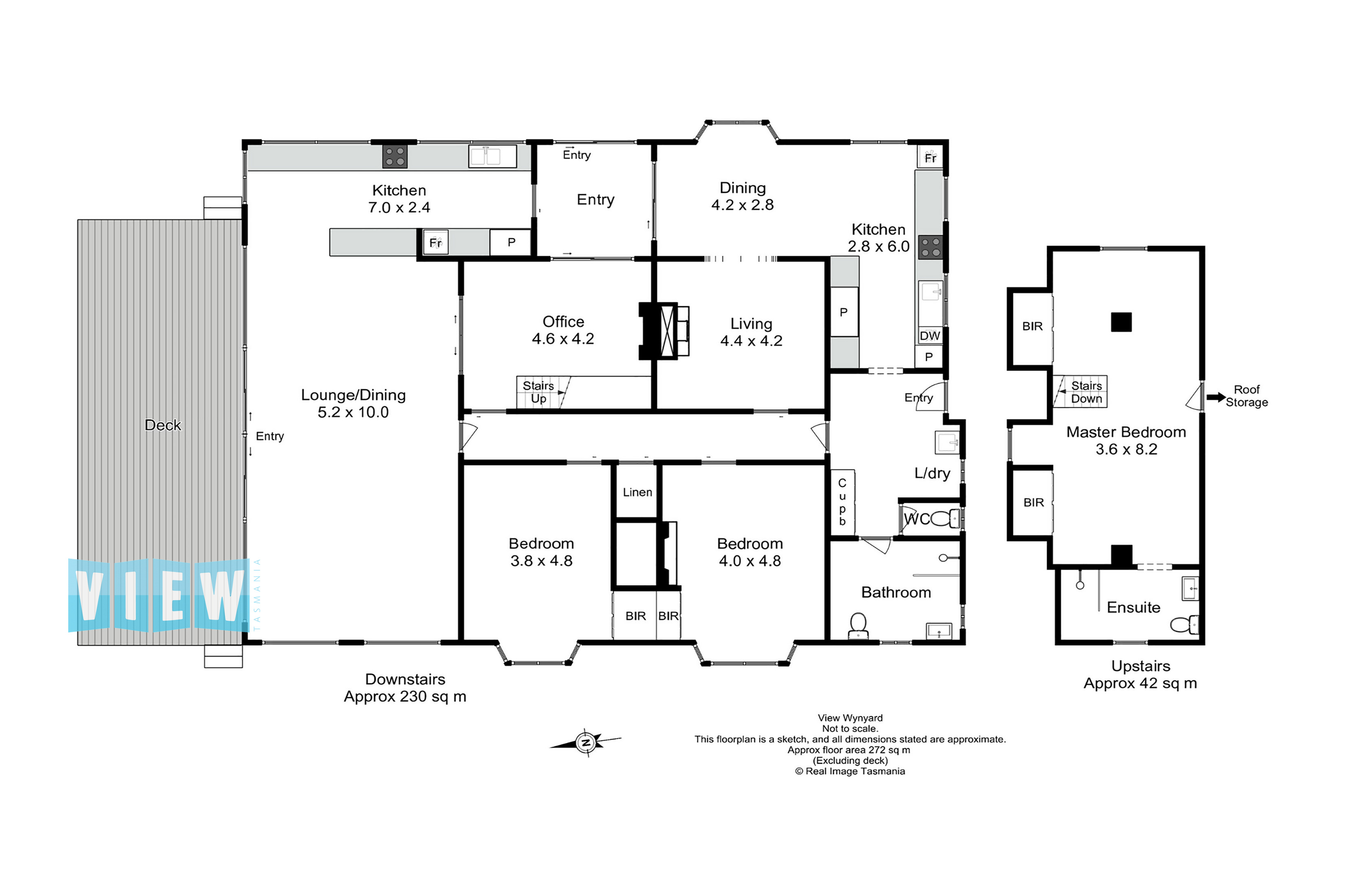
Floor Plans

Location

  • Contact the agency

    To request an inspection

  • # Call # Email

Michael Johnstone

Agent Name

# Report Listing

Looking for a property?

  • Top listings
  • Investment
  • Development
  • Personal home
  • Price reports
  • Suburb reports

Do you own a property?

  • Place a free listing
  • Services for private advertisers
  • Guide to selling your home
  • Insurance
  • Improve the photos of your listing
  • Value your property for free

Are you a real estate proffesional?

  • Publish your agencies properties
  • Already a client? Log into your account
  • Advertising on Australian Real Estate
  • Australian Real Estate data technology for property insights
  • Real Estate courses