Australia

$529,000

16 Woolleys Road, Takone, Tas 7325

# Location

Description

Live the tranquil country lifestyle you have been looking for!
Located just a short drive from Yolla and also the townships of Wynyard and Somerset, why not enjoy sitting on the deck for warm summer evenings,

overlooking a naturally fed spring and a peaceful country backdrop.
1.13Acres (Approx.) gives you plenty of room to do what you like, without the hassle of looking after heaps of land. (A further half an acre on separate title is available by negotiation)

There is a multitude of tracks in the area that are currently being enjoyed by horse enthusiasts and hikers alike.

Fertile land makes for a great veggie garden and could easily be expanded to your desired size or add an orchard.

The character and charm in and around this property is a must see to be adored.

Property features:
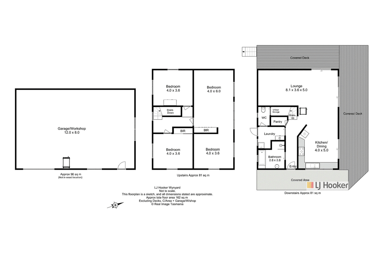
- Double storey home with abundance of timber features
- Cottage kitchen with gas cooking, preserving pantry and access to the deck
- Open plan kitchen, dining and living room at the heart of the house
- Built using the post and beam method, has exposed timber features and pegs
- Fully renovated bathroom with walk in shower and separate bath


- Large sunny master bedroom with built ins and extra space for office or potentially walk in wardrobe
- Furthermore, 2 good sized bedrooms with built ins
- Laundry and a separate toilet with added storage space
- Duel heating, reverse cycle air conditioner for convenience and wood heating for cozy winter nights
- Large deck with multiple internal/external access points and partially covered
- Large powered man cave 8mx12m (Approx.) with roller door access and wood heater
- 2x water tanks, running spring and septic

Avoid disappointment and contact Theresa for your private inspection today on 0419 395 274

Further details:
Council Rates:$1,070p/a (approx.) each
Build Year: 1994 (approx.)

**** The information on this website has been provided to LJ Hooker Wynyard by third parties. While LJ Hooker Wynyard have taken every care to verify the accuracy of the property details this information should not be relied upon and you should make your own enquiries and seek legal advice in respect of any property on the Website. All measurements are approximates ****

View More #

Floor Plans

Location

  • Contact the agency

    To request an inspection

  • # Call # Email

Theresa Button

Agent Name

# Report Listing

Looking for a property?

  • Top listings
  • Investment
  • Development
  • Personal home
  • Price reports
  • Suburb reports

Do you own a property?

  • Place a free listing
  • Services for private advertisers
  • Guide to selling your home
  • Insurance
  • Improve the photos of your listing
  • Value your property for free

Are you a real estate proffesional?

  • Publish your agencies properties
  • Already a client? Log into your account
  • Advertising on Australian Real Estate
  • Australian Real Estate data technology for property insights
  • Real Estate courses