Australia

Offers Over $1,950,000

19 Bourkes Road, Wynyard, Tas 7325

# Location

Description

Sonya Baker Property is honored to bring you this unique lifestyle retreat, located just 5 minutes from Wynyard, Tasmania set on approx. 8 acres.

This well-presented property in a sought-after locality has been extensively improved with a new Barn dominium Style Homestead, original mud brick homestead and self- contained cottage.
One Title: 3 Dwellings comprising: -

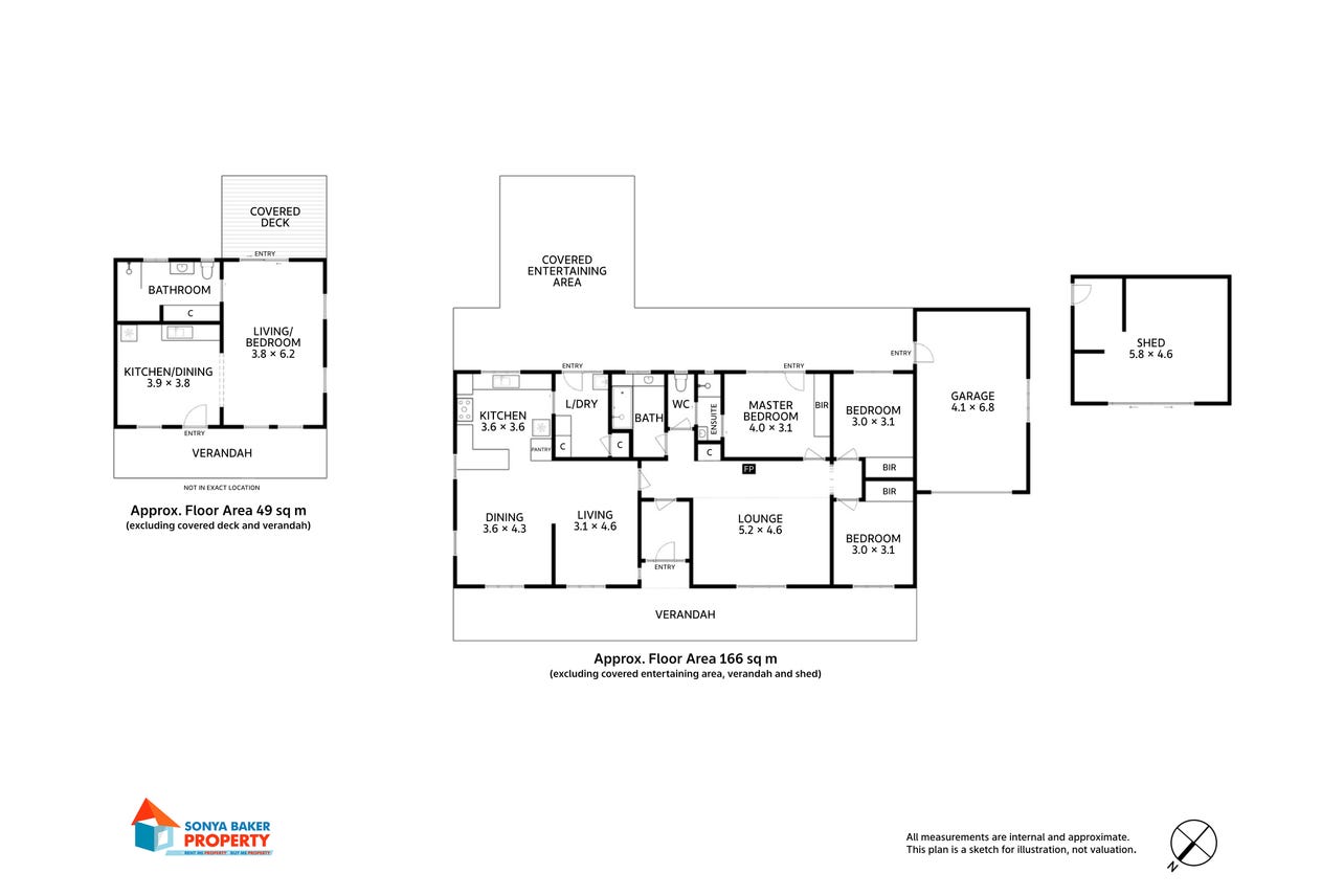
1. Self-contained Cottage suit single person/older couple
Approximate size: 70m2
Includes:

Reverse Cycle Airconditioning system, kitchenette, open plan living dining and bedroom, separate ensuite with walk in shower, toilet and storage which serves as both wardrobe & linen. Veranda on southern side with view of property & dam.

The cottage enjoys its own private garden area, veggie gardens, netted enclosure to suit chickens/orchard.

2. Original Mud Brick Homestead, Built 1979
Approximate size: 245m2 plus spacious outdoor alfresco dining.
Includes:

Reverse cycle Airconditioning, north & south veranda, single lock up garage.
3 bedrooms all with built-in wardrobes, main bedroom with adjoining ensuite, additional family room and open plan dining/kitchen, separate laundry with ample storage space.
Formal lounge with wood heater.

Bathroom with shower over bath.

Includes solar panels.

Both the cottage and the mud brick homestead have amply tank water and dam water which can be utilized to water the gardens and lawn.



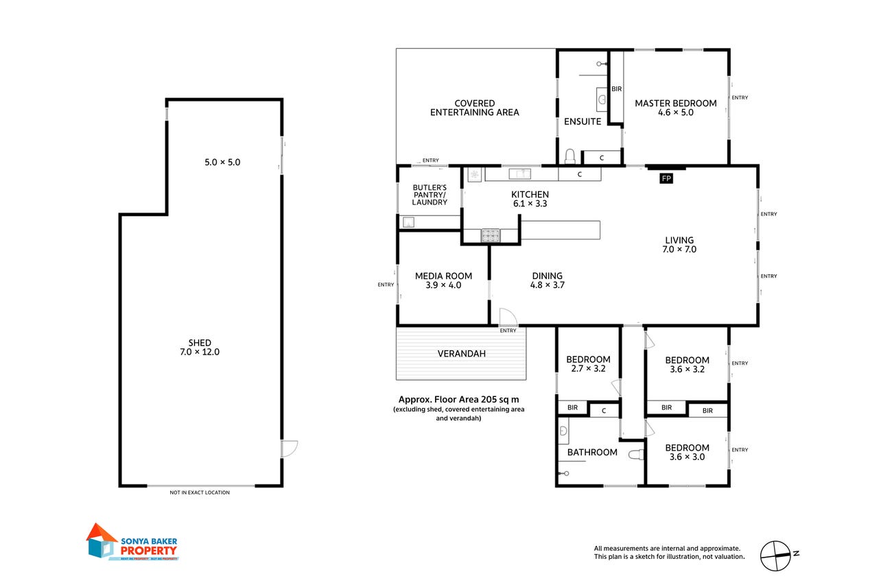
3. New Barn dominium Style Homestead. Constructed 2024
Includes:

Main open living area contains 5-meter ceilings; barn doors open to a wing on both east and west sides of the open planned area.
3 guest bedrooms with large built-in robes,
1 Main bathroom with built in storage,
Master bedroom and built-ins,
Ensuite containing walk in shower and extra storage,
Open plan living area - includes dining, kitchen living area, and reception area.
Meticulously built by owner and designer, showcasing Oregon timber exposed trusses, locally sourced timber wall features and hand-crafted bricks.
2nd lounge/family room with easy access to lock up garage and garden, laundry/butler's pantry and alfresco dining area.
Northern part of homestead with large glass sliding doors opening to a panoramic view across paddock all the way to Table Cape.
2 x 22,000 Liter water tanks and separate septic

Externally: -
Colourbond lock UP garage beside new dwelling, space for 4 vehicles, 2 x water tanks, and a man cave with separate entrance at rear.
Garden & mower equipment shed approx. 6 x 4 meters.
2 x Machinery sheds. Paddocks and property fully gated and fenced.

This is a property you can't ignore. It's tranquil yet practical setting has earned its owner to label it "Our Sanctuary".

Inspection by appointment.

View More #

Floor Plans

Location

  • Contact the agency

    To request an inspection

  • # Call # Email

Sonya Baker

Agent Name

# Report Listing

Looking for a property?

  • Top listings
  • Investment
  • Development
  • Personal home
  • Price reports
  • Suburb reports

Do you own a property?

  • Place a free listing
  • Services for private advertisers
  • Guide to selling your home
  • Insurance
  • Improve the photos of your listing
  • Value your property for free

Are you a real estate proffesional?

  • Publish your agencies properties
  • Already a client? Log into your account
  • Advertising on Australian Real Estate
  • Australian Real Estate data technology for property insights
  • Real Estate courses